
涪原工业股份 (台湾公司)
中山涪原五金 (大陆工厂)
24小时咨询热线
0760-23803726

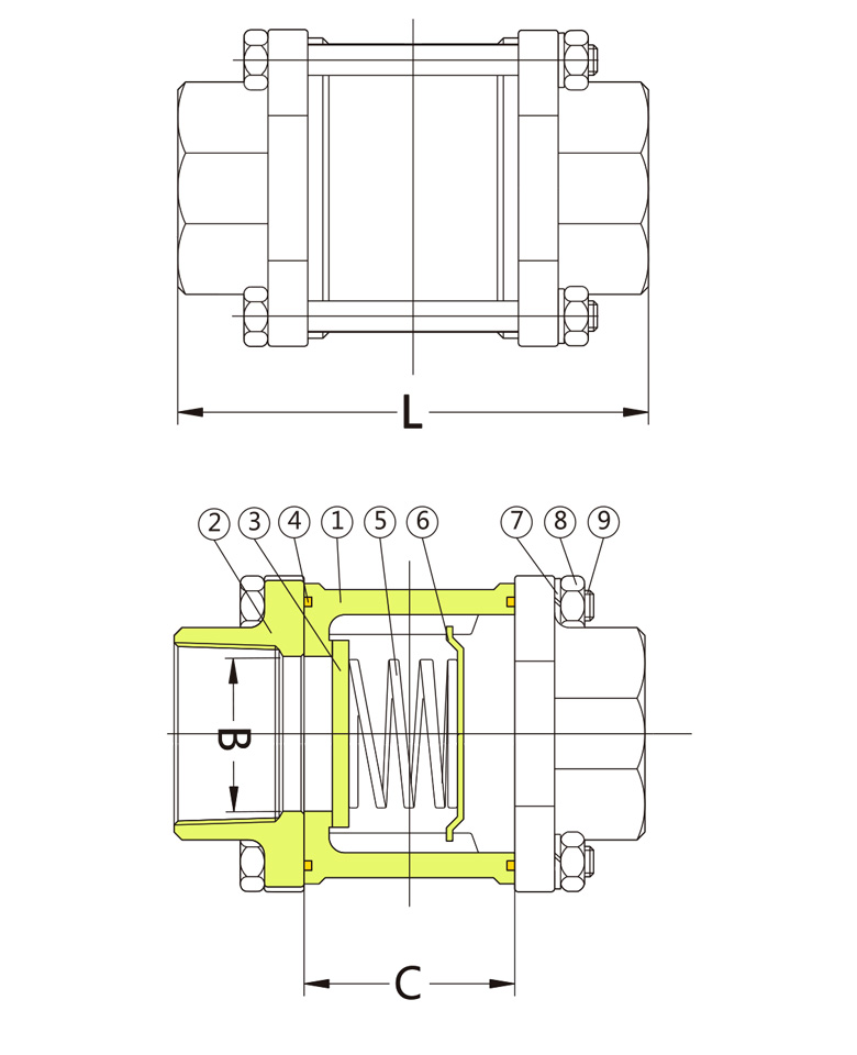
V- 3AZ3 DN8~DN100 (1/4”~4”)
三片式逆止閥
FULL PORT THREE-PIECE SHECK VALVE
● 適用温度範圍TEMPERATURE RANGE:-20 to 180℃
● 連接方式END CONNECTIONS:牙口/套焊/對焊
THREADED END,SOCKET WELD END,BUTT WELD END
● 管螺紋参照 PIPE THREAD IN ACCORDANCE
ASME B1.20.1(NPT)
DIN 259/DIN 2999
ISO 228/ISO 7-1
BS 21(PT)/BS EN 10226(R)


